Te koop Grond

Beschrijving van   

Vergelijk realty's

Te koop Grond

Grond Grond Grond Grond Grond Grond Grond Grond Grond Grond Grond Grond Grond Grond Grond Grond Grond Grond Grond Grond Grond Grond
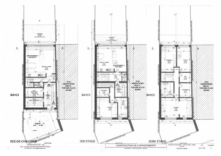
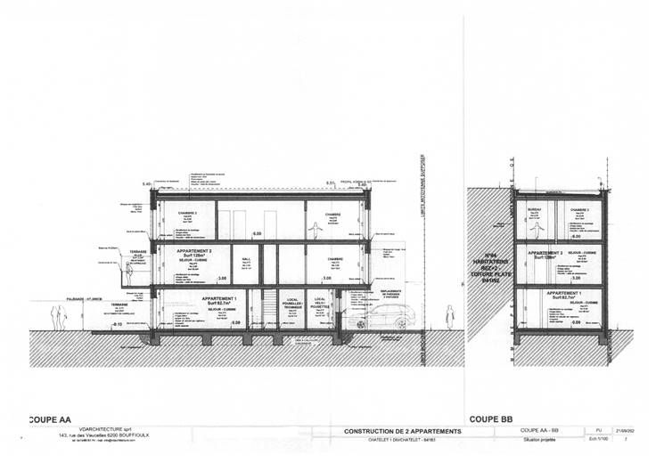
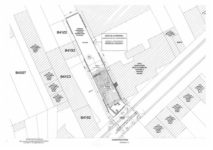
Sorry er is geen nederlandse vertaling beschikbaar. Très bon rapport qualité-prix, sympathique terrain à bâtir avec permis délivré pour la construction de 2 duplex. Le 1er logement propose une chambre, une terrasse et un jardin. Le second logement propose 2 chambres + bureau (ou 3 chambres) ainsi qu'une terrasse. Également 2 emplacements de parking et différents espaces de rangement, local vélo, local poubelle, etc. Immeuble très facile à construire (toiture plate, façades en briques...) et visant une clientèle très diversifiée: famille désirant construire un bien neuf avec chacun son indépendance mais en réduisant les couts liés à la construction, investisseur souhaitant réaliser l'immeuble et le mettre en vente ou en location par la suite, idéal également pour un indépendant désirant concilier vie privée et vie professionnelle. Le prix comprend: le terrain, les plans, les honoraires de l'architecte jusqu'à la délivrance du permis, la déclaration initiale PEB ainsi qu'un essai de sol qu'il est possible de négocier avec le propriétaire. Terrain plat, viabilisé (y compris le gaz de ville), borné, mesuré et offrant une superficie de +/- 2 ares 76 ca avec une façade de +/- 7,64 mètres. Bien libre de suite, situé dans une rue calme et à sens unique et à la fois proche de toutes les commodités, possibilité donc de se passer aisément d'un véhicule. Il est également envisageable de prévoir une valeur pro-fisco afin de réduire les frais liés à l'acquisition. Qu'attendez vous?
Type vastgoed Grond
Prijs 80.000