Te koop Te Koop Industriële Nieuwbouw Unit 2 te Du...

Beschrijving van   

Vergelijk realty's

Te koop Te Koop Industriële Nieuwbouw Unit 2 te Duffel

Te Koop Industriële Nieuwbouw Unit 2 te Duffel Te Koop Industriële Nieuwbouw Unit 2 te Duffel Te Koop Industriële Nieuwbouw Unit 2 te Duffel Te Koop Industriële Nieuwbouw Unit 2 te Duffel Te Koop Industriële Nieuwbouw Unit 2 te Duffel Te Koop Industriële Nieuwbouw Unit 2 te Duffel Te Koop Industriële Nieuwbouw Unit 2 te Duffel Te Koop Industriële Nieuwbouw Unit 2 te Duffel Te Koop Industriële Nieuwbouw Unit 2 te Duffel
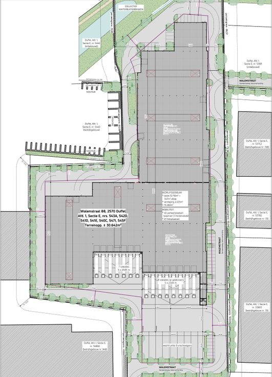
Nieuwbouw industriële ontwikkeling te Mechelen Noord. De volledige site bestaat uit 5 bedrijfsverzamelgebouwen voor een totale bebouwde oppervlakte van ca. 22.000 m2. Momenteel zijn er nog slechts 2 kleine units beschikbaar op de site. Oplevering is voorzien tegen het eerste kwartaal van 2025. De gebouwen worden casco opgeleverd, maar verdere afwerking kan besproken worden met de ontwikkelaar. De site is vlot bereikbaar en ligt op slechts 3 kilometer van de op- en afrit Rumst van de E19 Antwerpen – Brussel. OPPERVLAKTE Unit 2: 500 m² VASTGOEDINFORMATIE Stedenbouwkundige vergunning: uitgereikt Stedenbouwkundige bestemming: industriezone klasse 2 Dagvaardingen: geen dagvaarding uitgebracht Voorkooprecht: geen voorkooprecht aanwezig Verkavelingsvergunning: geen verkavelingsvergunning aanwezig Watertoets P-score: D VOORWAARDEN Nog beschikbare oppervlakte: Unit 2: € 800.00,00 (Prijzen zijn exclusief btw) BESCHIKBAARHEID Beschikbaar bij oplevering, voorzien in het eerste kwartaal van 2025.
Type vastgoed Commercieel
Prijs 800.000
Bewoonbare opp. 500