Te koop Bel-etage

Beschrijving van   

Vergelijk realty's

Te koop Bel-etage

Bel-etage Bel-etage Bel-etage Bel-etage Bel-etage Bel-etage Bel-etage Bel-etage Bel-etage Bel-etage Bel-etage Bel-etage Bel-etage Bel-etage Bel-etage
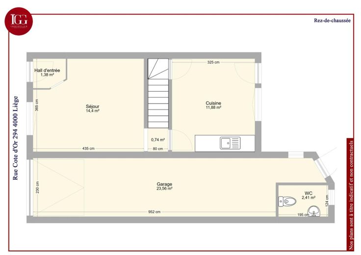
IGG IMMO à le plaisir de vous présenter cette jolie maison à rénover sur Sclessin. Elle se compose comme suit : Au RDC: Un petit sas d'entrée donnant accès au salon, une cuisine meublée, un grand garage avec espace WC. Au 1er un hall de nuit desservant 3 belles chambres et une salle de bain. Le bien dispose également de cave, un jardin avec terrasse et abris. Châssis double vitrage PVC, électricité à revoir totalement, chauffage central au gaz avec chaudière à condensation. Toiture d'époque mais en bon état. PEB G. RC: 535€ donnant potentiellement droit aux frais d'enregistrement réduits, Quartier en plein renouveau idéal pour une résidence principale ou projet de colocation. Infos et visites : GAGLIARDO Gregory 0489/84 99 99 ou contact@igg.immo
Type vastgoed Huis
Prijs 139.000
Aantal slaapkamers 3
Aantal badkamers 1