Te huur Semi industrieel

Beschrijving van   

Vergelijk realty's

Te huur Semi industrieel

Semi industrieel
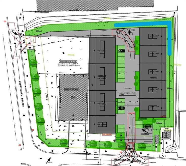
Splinternieuwe kwalitatieve KMO-ontwikkeling langs de N60 in Leupegem / Oudenaarde. Dit project bestaat uit 9 verschillende combineerbare units met oppervlaktes van 216 tot 324 m². Elke unit is voorzien van 2 parkeerplaatsen, een automatische sectionale poort, lichtstraten, 6 meter vrije hoogte en mogelijkheden tot mezzanine, kantoren en zonnepanelen. Volgens de vigerende gewestplannen geschikt voor industrie en opslag in combinatie met kantoren. Centrale ligging in Oost-Vlaanderen en via de N60 en N8 geniet men van een goede verbinding naar Rijsel, Kortrijk, Roeselare, Waregem, Deinze, Gent en Brussel. Aantrekkelijk voor zowel eindgebruikers als investeerders. Neem contact op voor meer informatie of een bezoek ter plaatse.
Type vastgoed Commercieel
Prijs 1.215
Bewoonbare opp. 216