Te koop Handelsgelijkvloers 298m²

Beschrijving van   

Vergelijk realty's

Te koop Handelsgelijkvloers 298m²

Handelsgelijkvloers 298m² Handelsgelijkvloers 298m² Handelsgelijkvloers 298m² Handelsgelijkvloers 298m² Handelsgelijkvloers 298m²
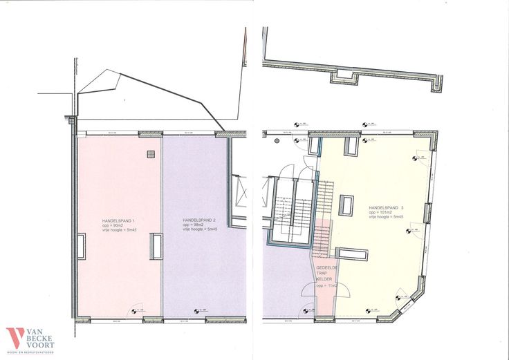
Subliem gelegen hoekhandelspand met volumineus winkeloppervlakte (298m²). Residentie Rialto is gelegen in de bruisende stadskern van Oostende. Het vele lichtinval is mede te danken aan de bijzonder grote glaspartijen en de vrije plafondhoogte van 5m45. De gevel meet 50 meter die zich vertaald in een boeiende etalageruimte. Daarbovenop is er nog een kelder van 106m² met rechtstreekse toegang vanuit het handelsgelijkvloers. Casco oplevering waardoor de inrichting naar eigen believen kan worden ingevuld. Er zijn meerdere handelsdoeleinden mogelijk (ook horeca). De hoge plafonds, grote glaspartijen en bijzondere oppervlakte geven een onevenaarbaar ruimtegevoel en werkelijk winkel-/horecabelevenis. Extra troeven: - Gunstige energiescore en E-peil: - mogelijkheid tot het samen aankopen met de andere twee units; - terraszones kunnen voorzien worden (mits aanvraag bij Stad Oostende); - vrij bij het verlijden van de notariële akte; - meerdere bestemmingen mogelijk. Locatie is alles! Dit pand dank zijn commerciële ligging door de aanpalende trendy shopping- en horecastraten (Adolf Buylstraat, Langestraat, Madridstraat en Hertstraat). Door de strategische ligging nabij Zeedijk, casino en winkelstaten is zowel dag- als avonduitbating mogelijk. Deze buurt is vol ontwikkeling (nieuwbouwappartementen, assistentieflats, lokale handelaars met een nieuwe zaak... Bent U de volgende? Ideaal geschikt voor een investeerder of voor een ondernemer die zijn business naar ... Renovatieplicht: nee
Type vastgoed Commercieel
Prijs 991.500
Bewoonbare opp. 101