Te koop Nieuwbouw met landelijk karakter te Oudenburg

Beschrijving van   

Vergelijk realty's

Te koop Nieuwbouw met landelijk karakter te Oudenburg

Nieuwbouw met landelijk karakter te Oudenburg Nieuwbouw met landelijk karakter te Oudenburg Nieuwbouw met landelijk karakter te Oudenburg
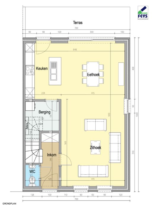
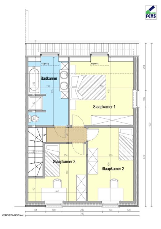
Op het perceel huisnummer 117 in de Westkerksestraat te Oudenburg realiseren wij een nieuwbouwverkaveling met 8 ruime loten. LOT 4: landelijke woning = 661,00 m² grondoppervlakte De woningen hebben een optimaal planindeling: open leefruimtes, bergruimte, 3 slaapkamers, badkamer met bad en douche.. Een E-peil van minder dan 30 zorgt dat deze woningen heel energiezuinig zullen zijn. Een doorgedreven isolatie, zonnepanelen, ventilatiesysteem D, vloerverwarming op het gelijkvloers en badkamer… zorgen voor een lage energiefactuur. Je zorgt zelf voor de finishing touch want de interieurafwerking is 100% op maat. Richtprijs van een halfopen bebouwing (lot 4) € 483.730,00 inclusief btw 21%, grond, volledig afgewerkt, veiligheidscoördinatie en EPB. Wij bouwen water- en winddicht (= incl grond en btw 382.534,00 €), gedeeltelijk of volledig afgewerkt. Meer info over het project en onze werkwijze? Aarzel niet ons te contacteren. Renovatieplicht: onbekend
Type vastgoed Huis
Prijs 382.534
Bewoonbare opp. 158
Aantal slaapkamers 3
Aantal badkamers 1