Te koop Appartement

Beschrijving van   

Vergelijk realty's

Te koop Appartement

Appartement Appartement Appartement Appartement Appartement Appartement
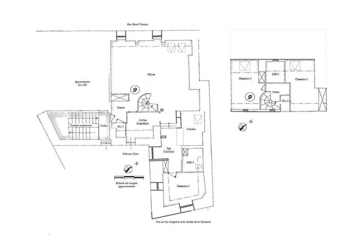
PORT DE VANNES PORTE SAINT VINCENT dans un hôtel particulier "classé" récemment rénové, je vous propose ce duplex au 3ème/4ème et dernier étage qui offre une vue imprenable sur les toits de Vannes, ses remparts, et même les jardins de la Garenne. Accessible par un beau et large escalier d'époque, l'appartement de 140 m2 de superficie au sol présente de plain-pied, une entrée avec placard vestiaire et wc séparé, un vaste séjour de 50 m2 qui accède à l'espace cuisine, et une suite parentale avec sa chambre et sa salle de bain privative. En duplex, un escalier distribue 2 jolies chambres mansardées, 1 salle de bain et 1 toilette. Traversant, cet appartement est clair et fonctionnel. Idéalement situé en intra muros, il est à proximité immédiate du Port de plaisance et des commerces locaux. Il offre un cadre de vie vannetais des plus agréables pour les amateurs de charme et de confort de vie. Une situation géographique INTRA MUROS recherchée et idéale au quotidien . Prix de vente 569 800 euros incluant 3,6% frais d'agence soit 550 000 euros hors honoraires DPE C et GES A Montant moyen estimé des dépenses annuelles d'énergie pour un usage standard établi à partir des prix de l'énergie de l'année 2021 : entre 1159 euros et 1567 euros Les informations sur les risques naturels, miniers, ou technologiques, auxquels ces biens sont exposés, sont disponibles sur le site www.georisques.gouv.fr Pour visiter et vous accompagner dans votre projet, contactez Catherine
Type vastgoed Appartement
Prijs 569.800
Bewoonbare opp. 140
Aantal slaapkamers 3