Te koop Adegem (Maldegem), Dorp - 'Hof ter Walle' - Fase 1: Lot 17
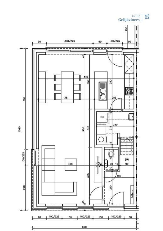
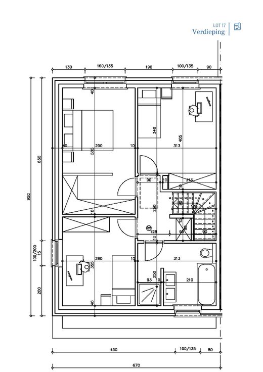
Een moderne halfopen nieuwbouwwoning met op het gelijkvloers een inkom, een ruime living en open keuken, een wasplaats en een gastentoilet. Op de verdieping zijn er 3 slaapkamers waarvan 1 met dressing en een badkamer met bad en inloopdouche. De zolder is toegankelijk via een zolderluik maar een vaste trap is mogelijk mits meerprijs. Afwerking naar eigen smaak binnen de vooropgestelde afwerkingsbudgetten. Meer info? Contacteer Ewout op 0497 588 888 of via contact@huysmanbouw.be
Renovatieplicht: onbekend