Te koop Energiezuinige nieuwbouw op 477m2 - open bebouwing
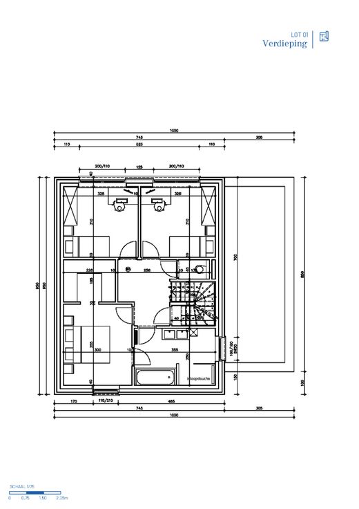
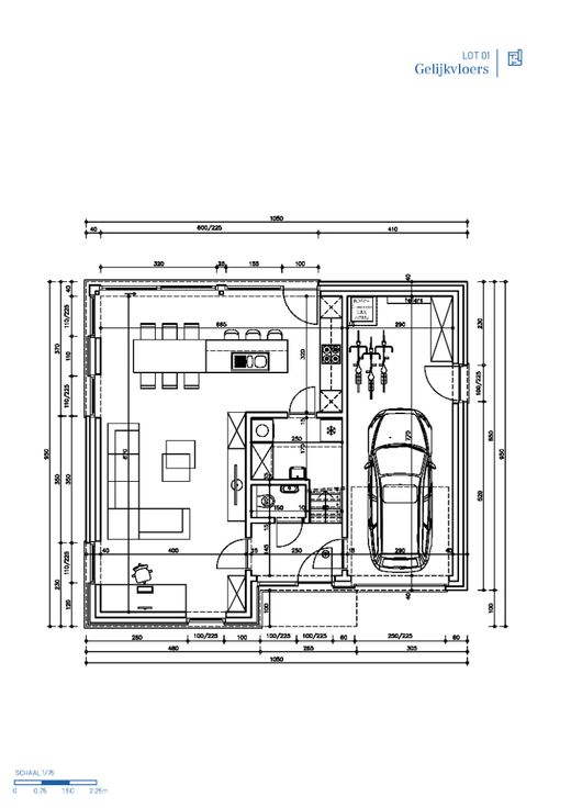
Zeer ruime en energiezuinige nieuwbouwwoning (open bebouwing) op een zuidelijk georiënteerd perceel van 477m2. Op het gelijkvloers is er inpandige garage met fietsberging & bergruimte, een wasplaats/berging een inkom met gastentoilet en een grote open leefruimte met bureauhoek. Op de eerste verdieping bevinden zich 3 slaapkamers, een grote dressing, een apart toilet en een badkamer met bad + inloopdouche. De zolder is toegankelijk met een vaste trap waardoor hier ook nog een vierde slaapkamer kan gemaakt worden. De vermelde prijs is inclusief ALL-IN afwerking. De interieurafwerking is 100% op maat! De keuken, vloeren, badkamer,.... het kan allemaal vrij gekozen worden. Standaard is de woning sowieso voorzien van alle moderne technieken zoals een warmtepomp en vloerverwarming op het gelijkvloers +1e verdieping. De woning wordt gebouwd in een nieuwe residentiële verkaveling met 11 woningen en 2 meergezinswoningen. Het residentiële project vormt een architecturaal geheel met optimaal ingedeelde wooneenheden en verschillende groen- en speelzones. Kom jij hier binnenkort thuis? Contacteer onze bouwadviseur Ewout voor meer informatie: 0497 588 888 - contact@huysmanbouw.be
Renovatieplicht: onbekend