Te koop Nieuwbouwwoning te Genk

Beschrijving van   

Vergelijk realty's

Te koop Nieuwbouwwoning te Genk

Nieuwbouwwoning te Genk Nieuwbouwwoning te Genk Nieuwbouwwoning te Genk Nieuwbouwwoning te Genk Nieuwbouwwoning te Genk
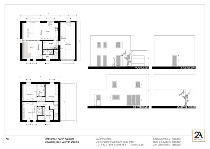
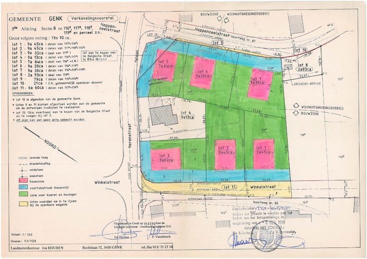
In de Heppenzeelstraat in Genk, biedt AVL de mogelijkheid tot het bouwen van een woning op een mooi perceel bouwgrond van 9a30ca, zijnde LOT 7 op het verkavelingsplan. Wij bieden u de mogelijkheid tot het bouwen van een woning naar eigen wensen. Het voorbeeld op de website is een moderne woning van 154m2, bestaande uit inkomhal, toilet, berging, grenzend aan de open keuken en garage, eethoek en leefruimte. Op de verdieping vinden we een 3 ruime slaapkamers en een badkamer met bad en douche. Contacteer ons voor andere mogelijkheden. Een woning op maat kan ook via onze architecten. De prijs is exclusief de aan te passen fundering (indien nodig blijkt na sondering). De woning biedt u alvast alle zekerheden en garanties inzake EPB waarden. We geven u graag uitgebreid uitleg over de vele mogelijkheden in een persoonlijk gesprek. Dit project realiseren wij in samenwerking met Limburgs Vastgoed. Bel bouwadviseur Geert 011/450 280 voor een vrijblijvende afspraak. PRIJS SLEUTEL OP DE DEUR AFGEWERKT € 460 662 excl. alle kosten op grond en constructie € 544 466 incl. alle kosten op grond en constructie
Type vastgoed Huis
Prijs 460.662
Bewoonbare opp. 930
Aantal slaapkamers 3
Aantal badkamers 1