Te koop Investeringsgebouw voor gemengd gebruik

Beschrijving van   

Vergelijk realty's

Te koop Investeringsgebouw voor gemengd gebruik

Investeringsgebouw voor gemengd gebruik Investeringsgebouw voor gemengd gebruik Investeringsgebouw voor gemengd gebruik Investeringsgebouw voor gemengd gebruik Investeringsgebouw voor gemengd gebruik Investeringsgebouw voor gemengd gebruik Investeringsgebouw voor gemengd gebruik Investeringsgebouw voor gemengd gebruik Investeringsgebouw voor gemengd gebruik Investeringsgebouw voor gemengd gebruik Investeringsgebouw voor gemengd gebruik Investeringsgebouw voor gemengd gebruik Investeringsgebouw voor gemengd gebruik
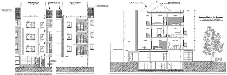
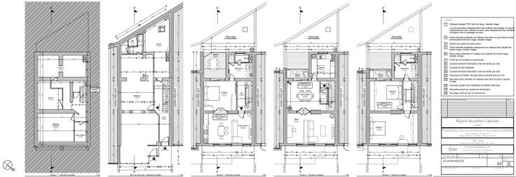
Investeringsopbouw in stedenbouwkundige volgorde. Bestaat uit een commerciële begane grond voor Horeca-bestemming. 2 appartementen waarvan een appartement van 60 m² en een tweede van ongeveer 130 m² in duplex. Individuele ketel. Vergunning voor splitsing verkregen. Grote kelder met een oppervlakte van 70m². EPB appartement E-
Type vastgoed Huis
Prijs 650.000
Bewoonbare opp. 340
Aantal slaapkamers 5