Te koop Commerciële panden

Beschrijving van   

Vergelijk realty's

Te koop Commerciële panden

Commerciële panden Commerciële panden Commerciële panden Commerciële panden Commerciële panden Commerciële panden Commerciële panden Commerciële panden Commerciële panden Commerciële panden Commerciële panden Commerciële panden Commerciële panden Commerciële panden Commerciële panden Commerciële panden Commerciële panden Commerciële panden
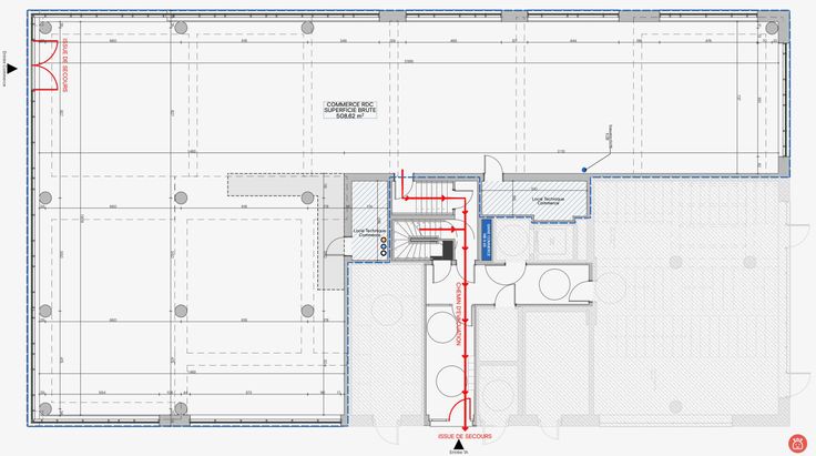
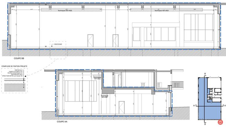
*** IMMEUBLE NEUF *** EXCELLENTE VISIBILITE *** NOMBREUX PARKINGS A PROXIMITE *** Idéalement situé à quelques pas de la Grand-Place et le long d’un axe pénétrant (rue des Combattants – N28), cet exceptionnel local commercial livré CASCO dispose d’une surface de +/-508m2 auxquels s’ajoutent un local technique de +/-24m2 en mezzanine. Le bien est situé au rez-de-chaussée d’un immeuble faisant partie du projet « Ilot-Saint-Roch » qui comprendra à terme 16 immeubles accueillant 291 appartements et disposant de plusieurs parkings publics à proximité immédiate. Hauteur sous plafond 7,20m (sous technique 6,20m). Façade à rue : +/-36m pour +/-75m de vitrine (3 façades) Le prix est hors TVA 21% et frais divers : frais d’architecte (2,3%), coordinateur de sécurité (1.050€), certificat PEB (1.950€), frais de raccordement (1,2%) et frais d’acte de base (650€), à majorer de la TVA 21% Possibilité d’acheter une cave et deux emplacements de parking privatifs en sous-sol Dossier sur demande
Type vastgoed Commercieel
Prijs 1.308.354
Bewoonbare opp. 532