Te huur Commerciële panden

Beschrijving van   

Vergelijk realty's

Te huur Commerciële panden

Commerciële panden Commerciële panden Commerciële panden Commerciële panden Commerciële panden Commerciële panden Commerciële panden Commerciële panden Commerciële panden Commerciële panden Commerciële panden Commerciële panden Commerciële panden Commerciële panden Commerciële panden Commerciële panden Commerciële panden Commerciële panden
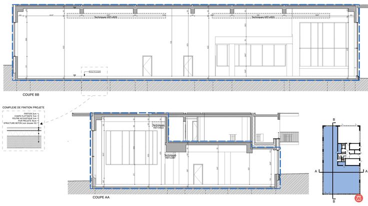
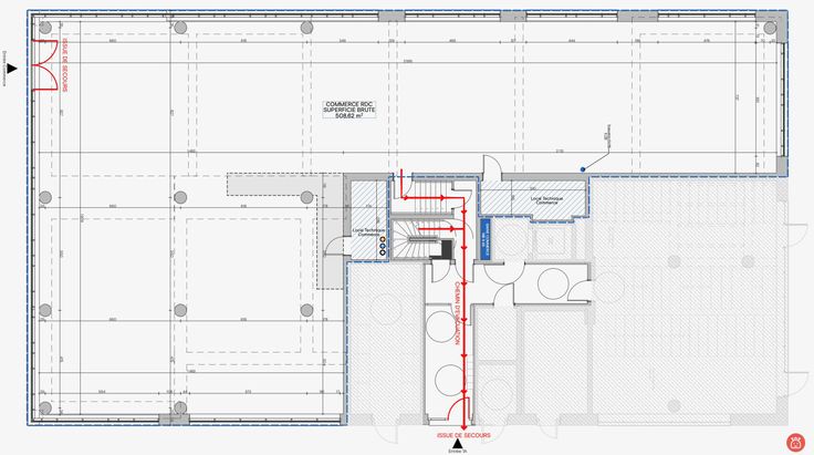
*** IMMEUBLE NEUF *** EXCELLENTE VISIBILITE *** NOMBREUX PARKINGS A PROXIMITE *** Idéalement situé à quelques pas de la Grand-Place et le long d’un axe pénétrant (rue des Combattants – N28), cet exceptionnel local commercial dispose d’une surface de +/-508m2 auquel s’ajoute un local technique de +/-24m2 en mezzanine. Le bien est situé au rez-de-chaussée d’un immeuble faisant partie du projet « Ilot-Saint-Roch » qui comprendra à terme 16 immeubles accueillant 291 appartements et disposant de plusieurs parking publics à proximité immédiate. Hauteur sous plafond 7,20m (sous technique 6,20m). Façade à rue : +/-36m pour +/-75m de vitrine (3 façades) Activité à apprécier par le bailleur, dans le respect de l’Acte de Base et du Règlement de Copropriété. Dossier sur demande
Type vastgoed Commercieel
Prijs 6.000
Bewoonbare opp. 508