Te huur Nieuwbouw opslagruimte te huur vlak naast ...

Beschrijving van   

Vergelijk realty's

Te huur Nieuwbouw opslagruimte te huur vlak naast de E40

Nieuwbouw opslagruimte te huur vlak naast de E40 Nieuwbouw opslagruimte te huur vlak naast de E40 Nieuwbouw opslagruimte te huur vlak naast de E40 Nieuwbouw opslagruimte te huur vlak naast de E40 Nieuwbouw opslagruimte te huur vlak naast de E40 Nieuwbouw opslagruimte te huur vlak naast de E40 Nieuwbouw opslagruimte te huur vlak naast de E40
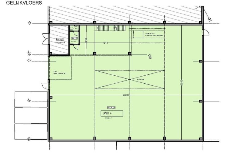
Nieuwbouw opslagruimte te huur vlak naast de E40 in Erembodegem. Het pand beschikt over een opslagruimte van 540 m² met elektrische sectionaalpoort, 7 meter vrije hoogte, basisverlichting, zonnepanelen en polybetonvloer. Op verdiep is er nog een mezzanine van 81 m² dat kan fungeren als kantoorruimte. De unit is beschikbaar vanaf 01/11. Bj interesse, contacteer Structura.biz voor een bezoek ter plaatse! Renovatieplicht: onbekend
Type vastgoed Commercieel
Prijs 3.408