Te koop Gebouw voor gemengd gebruik

Beschrijving van   

Vergelijk realty's

Te koop Gebouw voor gemengd gebruik

Gebouw voor gemengd gebruik Gebouw voor gemengd gebruik Gebouw voor gemengd gebruik Gebouw voor gemengd gebruik Gebouw voor gemengd gebruik Gebouw voor gemengd gebruik Gebouw voor gemengd gebruik Gebouw voor gemengd gebruik Gebouw voor gemengd gebruik Gebouw voor gemengd gebruik Gebouw voor gemengd gebruik Gebouw voor gemengd gebruik Gebouw voor gemengd gebruik
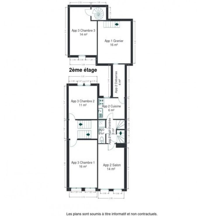
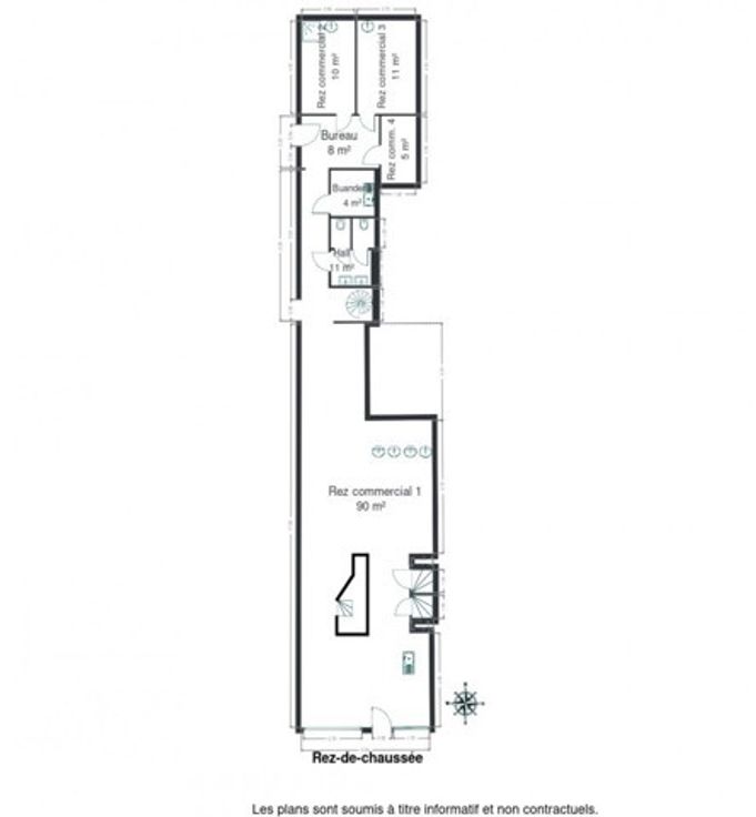
Situé Place du Pont Neuf 5-6, immeuble de rapport à vendre composé comme suit: Sous-sol: local chaufferie et cave commune Superbe RDC commercial rénové de 139m² loué sous contrat de concession par le salon de coiffure "Georgette". Appartement 1 (1 chambre) et appartement 2 (2 chambres): Triplex loué (appartement 1 en cours de rénovation) Appartement 3: duplex loué avec 3 chambres avec une grande terrasse et un grenier Le RDC commercial sera vide d'ici cet été. Techniques: ardoises, châssis simple et double vitrage bois, électricité mono-horaire individuel (compteur à budget), citerne à mazout, PEB G (20231020001486) Bâtiment numéro 3 et numéro 4 à vendre également, très belle opportunité d'investissement! Plus d'informations: nora@scheen-lecoq.be
Type vastgoed Huis
Prijs 299.000
Bewoonbare opp. 355
Aantal slaapkamers 6
Aantal badkamers 3