Te huur Handelsgelijksvloers

Beschrijving van   

Vergelijk realty's

Te huur Handelsgelijksvloers

Handelsgelijksvloers Handelsgelijksvloers Handelsgelijksvloers Handelsgelijksvloers Handelsgelijksvloers Handelsgelijksvloers
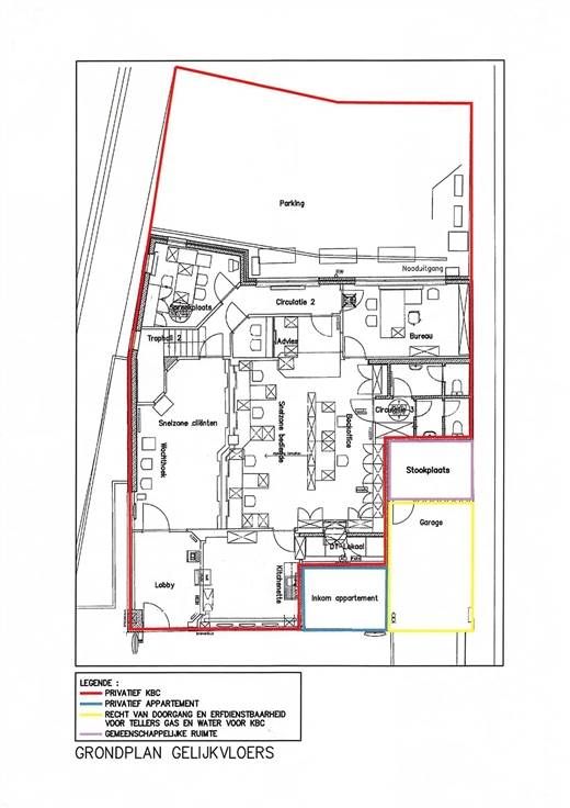
Ruime gelijkvloerse praktijk-, kantoor- en/of commerciële ruimte, nabij de Ring rond Brussel. Bestaande uit: op het gelijkvloers: inkom en ontvangsthal, keuken ,berging, toiletten , 1ste kantoorruimte (67m²) en 2 burelen (13.50m² en 11.50m² ). Op de kelderruimte een archiefruimte (18 m²) en ingerichte kelderruimte ( 24m²). Onmiddellijk vrij!. Bruto oppervlakte : +- 180 m² Vlakbij openbaar vervoer, centrum Lembeek & E19.
Type vastgoed Commercieel
Prijs 1.000
Bewoonbare opp. 180