Te huur Recent dakapp met carport

Beschrijving van   

Vergelijk realty's

Te huur Recent dakapp met carport

Recent dakapp met carport Recent dakapp met carport Recent dakapp met carport Recent dakapp met carport Recent dakapp met carport Recent dakapp met carport Recent dakapp met carport Recent dakapp met carport Recent dakapp met carport
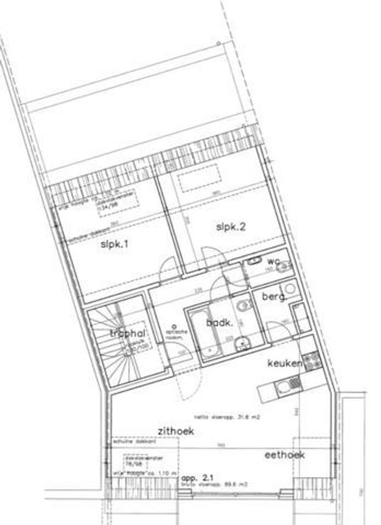
Energiezuinig dakappartement met 2 slpks, terras en carport! Dit app bevindt zich op de 2de verd (geen lift) in een kleinschalig gebouw van slechts 3 app en is gelegen in het dorp van Vrasene op slechts enkele km van de E34. De indeling is als volgt: inkomhal/nachthal met gastentoilet, 2 ruime slaapkamers en badkamer. Verder is er nog een woonkamer met veel lichtinval, een moderne ingerichte open keuken met eiland en aansluitend een berging/wasplaats. Buiten kan u heerlijk genieten op het terrasje. Als surplus is er nog een individuele carport met buitenberging bereikbaar via een parallelweg en is het app voorzien van zonnepanelen. Als extra troef zijn er geen gemeenschappelijke kosten!. Beschikbaar 1/9. Wij leiden u graag rond!
Type vastgoed Appartement
Prijs 900
Bewoonbare opp. 75
Aantal slaapkamers 2
Aantal badkamers 1