Te koop Semi industrieel of showroom

Beschrijving van   

Vergelijk realty's

Te koop Semi industrieel of showroom

Semi industrieel of showroom Semi industrieel of showroom Semi industrieel of showroom Semi industrieel of showroom Semi industrieel of showroom Semi industrieel of showroom Semi industrieel of showroom Semi industrieel of showroom Semi industrieel of showroom Semi industrieel of showroom
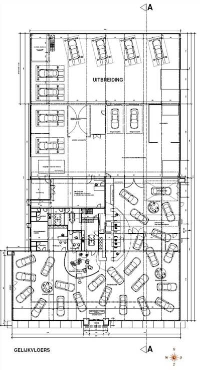
Semi-industrieel bedrijfspand (THTK) met een prachtige zichtlocatie op een terrein van 5.537 m². Dit pand biedt ruime magazijnen en/of showrooms, moderne kantoren en circa 60 parkeerplaatsen. Toegelaten activiteiten zijn onder andere opslag, logistiek, productie, groothandel, tankstations en bedrijfsrestaurants. Het pand is gunstig gelegen vlak aan de R41 (ring Aalst), op 3 km van de N9, 5 km van de E40 en 10 km van de N47, waardoor het uitstekende bereikbaarheid en zichtbaarheid biedt. Voor meer informatie of een bezoek ter plaatse kunt u contact opnemen met Ceusters.
Type vastgoed Commercieel
Prijs 3.650.000
Bewoonbare opp. 2111