Te koop Vakantiewoning

Beschrijving van   

Vergelijk realty's

Te koop Vakantiewoning

Vakantiewoning Vakantiewoning Vakantiewoning Vakantiewoning Vakantiewoning Vakantiewoning Vakantiewoning Vakantiewoning Vakantiewoning Vakantiewoning Vakantiewoning
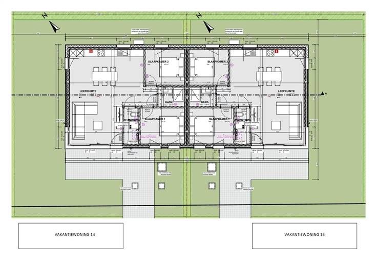
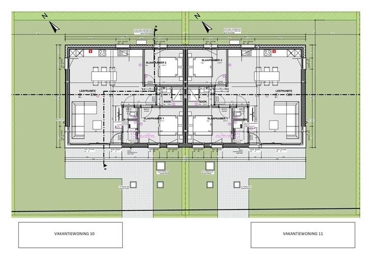
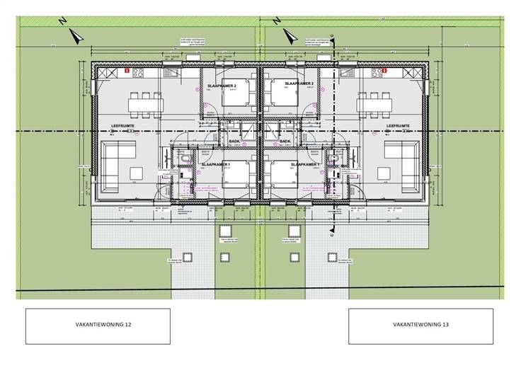
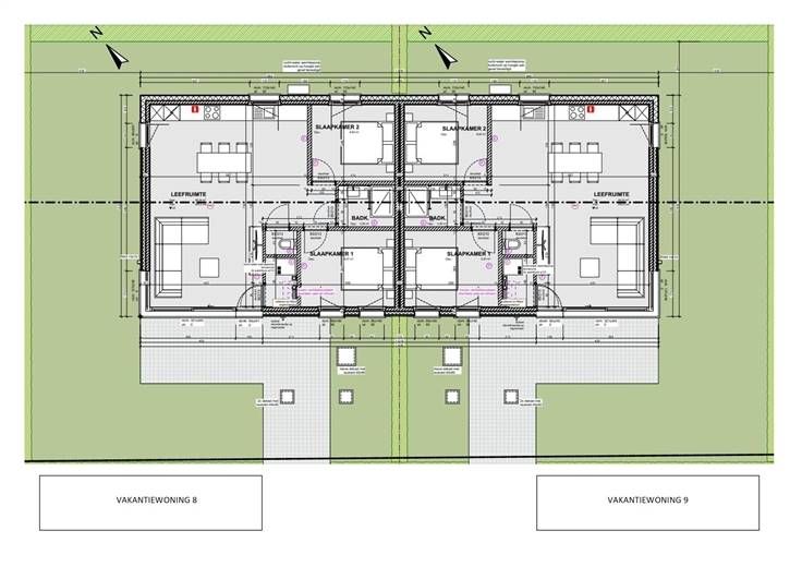
In de ZEEDROOM II worden er 8 halfopen vakantiewoningen gebouwd. Deze zijn gelegen naast Zeedroom I, zelfde toegangsweg en kunnen zowel als 2 kamer als 3 kamer verkregen worden. De woningen worden afgewerkt in dezelfde stijl als Zeedroom I, in witte crepi met hout in 3d profiel. Qua afwerking hebben we volgende specificaties: - Privatieve parking per woning - Airco warm/koud met warmtepomp - Zonnepanelen - Privatieve tuin in groene omgeving - Warmtepompboiler - Grote raampartijen, triple beglazing - Sfeerverlichting buiten - Zuid gerichte terrassen
Type vastgoed Huis
Prijs 290.000
Bewoonbare opp. 80
Aantal slaapkamers 2
Aantal badkamers 1