Te koop Huis

Beschrijving van   

Vergelijk realty's

Te koop Huis

Huis Huis Huis Huis Huis Huis Huis Huis Huis Huis Huis Huis Huis Huis Huis Huis Huis Huis Huis Huis Huis
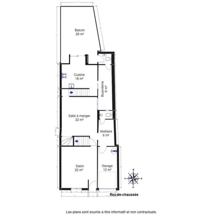
Maison 2 façades de +- 197 m² sur 12ares 10 rénovée , 4 chambres, un bureau, 2 salle de bains, piscine chauffée, panneaux photovoltaïques, jardin. Comprenant : Au sous-sol: cave Au Rez-de-Chaussée: Salon, salle à manger, cuisine à vivre, Buanderie, 2 wc séparé, garage. Etage 1: Hall de nuit, Chambre 1, Chambre 2, salle de bain, débarras. Etage 2: Hall de nuit, Chambre 3, Chambre 4, bureau, salle de bains. Divers: DV PVC, CCM, Pompe à chaleur, Electricité aux normes, 39 panneaux photovoltaïques. PEB C 20240827001325 - EP TOT 54.905 kWh/an - EPS 181 kWh/m²/an,- 47 kg CO2/m².an - RCNI :
Type vastgoed Huis
Prijs 320.000
Bewoonbare opp. 197
Aantal slaapkamers 4
Aantal badkamers 2