Te koop Bouwgrond

Beschrijving van   

Vergelijk realty's

Te koop Bouwgrond

Bouwgrond Bouwgrond Bouwgrond Bouwgrond Bouwgrond
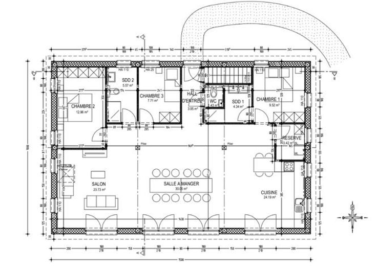
L'Espace Immobilier vous présente à la vente ce grand terrain à bâtir d'environ 21 ares. Situé dans un parc residentiel, de week-end et de loisirs du bois de Roly. - Parcelle de 21 ares 27 ca. - Largeur front de rue : 24,44 m. - Longueur du terrain : +/- 80m. RC non indexé : 1€. Possibilité d'acquérir le permis d'urbanisme octroyé pour le projet suivant : - Maison de +/- 123m² habitable. - 3 chambres. - 2 sdd. - 1 grance piéce de vie de 78m². - grenier aménageable de +/- 123m². - cave de +/- 123m². Les plans sont disponibles en agence. Pour plus d'informations ou pour fixer un rendez-vous, veuillez nous contacter au 071/115.116 ou par mail à info@espaceimmobilier.be. Toutes les offres reçues sont soumises à l'acceptation du propriétaire. Les superficies ne sont mentionnées qu'à titre indicatif. Publicité à caractère non-contractuelle.
Type vastgoed Grond
Prijs 18.000