Te huur Licht penthouse met groot terras

Beschrijving van   

Vergelijk realty's

Te huur Licht penthouse met groot terras

Licht penthouse met groot terras Licht penthouse met groot terras Licht penthouse met groot terras Licht penthouse met groot terras Licht penthouse met groot terras Licht penthouse met groot terras Licht penthouse met groot terras Licht penthouse met groot terras Licht penthouse met groot terras Licht penthouse met groot terras Licht penthouse met groot terras Licht penthouse met groot terras Licht penthouse met groot terras Licht penthouse met groot terras Licht penthouse met groot terras Licht penthouse met groot terras Licht penthouse met groot terras Licht penthouse met groot terras
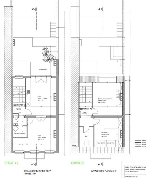
Omschrijving: Gelegen in Vorst, op een steenworp afstand van ' l'altitude 100 ', dichtbij openbaar vervoer, restaurant, winkels. Je kunt letterlijk alles te voet doen. Dit ruime duplex penthouse van 145m² woonoppervlak zal u verleiden door zijn helderheid en de aanwezigheid van zijn groot terras met uitzicht op de tuinen. De woning is gelegen op de tweede en derde verdieping in een bijzonder net herenhuis. Bestaande uit: Eerste niveau: woonkamer en eetkamer bestaande uit twee aangrenzende kamers met hoge plafonds. Super uitgeruste open keuken en directe toegang tot het terras op het westen gelegen van +/- 31m2. Een apart kantoor van +/- 5m2. Gastentoilet met doucheruimte. Tweede niveau: Twee grote slaapkamers met elk ingebouwde kasten, waarvan één met een mezzanine. Badkamer, voorzien van ligbad, dubbele wastafel en toilet. Kelder en fietsenstalling. Geen gemeenschappelijke kosten, de meters zijn individueel.
Type vastgoed Appartement
Prijs 1.800
Bewoonbare opp. 145
Aantal slaapkamers 2
Aantal badkamers 2