Te koop Huis

Beschrijving van   

Vergelijk realty's

Te koop Huis

Huis Huis Huis Huis Huis Huis Huis Huis Huis Huis Huis Huis Huis Huis Huis Huis
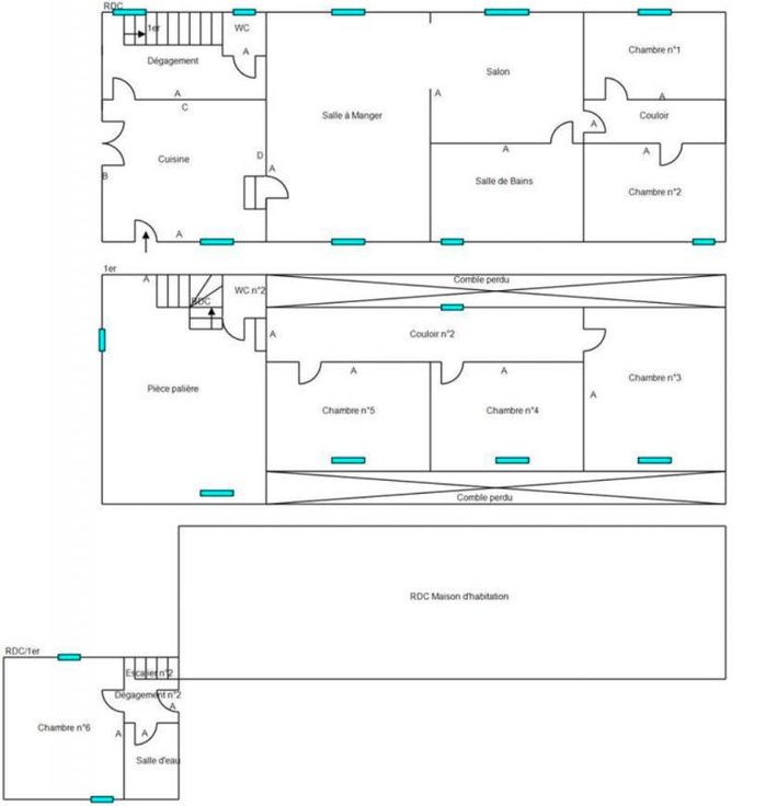
Vous recherchez une grande maison familiale et vous aimez le charme de l'ancien ? Alors, venez découvrir cette longère en pierres de pays avec ses beaux volumes et son T2 indépendant. Vous profiterez du calme de la campagne mais aussi de la proximité d'un grand axe , la N31 (Soissons est à 15 min, Laon à 30 min, Reims à 40 min, Villers-Cotterêts et sa cité de la Francophonie à 40 min). Si vous avez des enfants, une école élémentaire se trouve à 5 min et un collège à 8 min. Cette longère vous offre entre autre : 11 pièces, 6 chambres dont 2 au rez-de-chaussée et une suite parentale avec accès indépendant. Vous avez besoin d'accueillir vos proches ou vous avez un projet de location ? Un T2 avec son accès indépendant et son jardin sera un plus indiscutable. Outre les annexes : cave voutée, buanderie, chaufferie, terrasse couverte, garage. Cette propriété offre également une efficacité énergétique rare dans l'ancien grâce à ses panneaux solaires, sa chaudière à pellet et son insert. Enfin, le jardin clos et arboré est sans vis-à-vis. DPE : Classe C - GES : A Montant moyen estimé des dépenses annuelles d'énergie pour un usage standard établi à partir des prix de l'énergie de l'année 2021 : entre 1645 et 2226 euros. Prix : 262 000 euros, honoraires à la charge du vendeur. Pour visiter et vous accompagner dans votre projet, contactez Laetitia KINZINGER QUÉMART, au 0619889284 ou par courriel à l.quemart@proprietes-privees.com Selon l'article L.561.5
Type vastgoed Huis
Prijs 262.000
Bewoonbare opp. 230
Aantal slaapkamers 6
Aantal badkamers 1