Te koop Halfopen bebouwing te koop

Beschrijving van   

Vergelijk realty's

Te koop Halfopen bebouwing te koop

Halfopen bebouwing te koop Halfopen bebouwing te koop Halfopen bebouwing te koop Halfopen bebouwing te koop Halfopen bebouwing te koop Halfopen bebouwing te koop Halfopen bebouwing te koop Halfopen bebouwing te koop
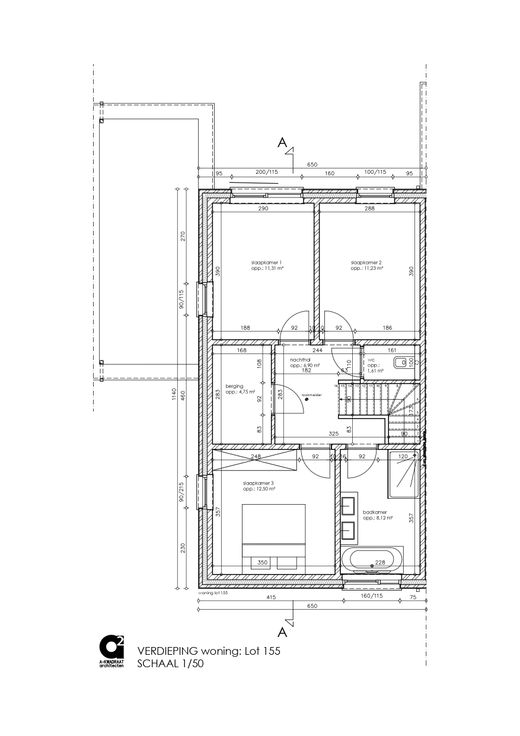
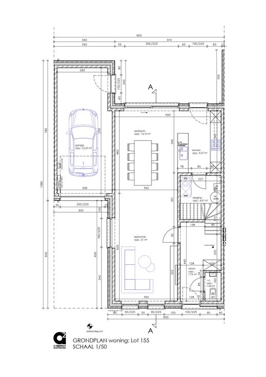
4 moderne woningen gelegen in een nieuwe, rustige en groene wijk te Astene, Beekstraat. De indeling van de woningen is als volgt: U betreedt de woning via de inkomhal met apart toilet. Verder door komt u uit in de zitkamer, eethoek en open keuken. Vanuit de keuken heeft u toegang tot de berging. Op de eerste verdieping bevinden zich 3 slaapkamers en de badkamer. Verder vindt u hier nog een tweede berging en een apart bureau voor het lot 152. De ruwbouwwerken zijn reeds gestart, maar u heeft nog de mogelijkheid om de binnenafwerking volledig zelf te kiezen. Bovendien beschikken onze woningen over vloerverwarming met lucht/water warmtepomp en zonnepanelen waardoor zij een laag energiepeil hebben conform de geldende normen. De plannen en lastenboeken kunnen vrijblijvend opgevraagd worden.
Type vastgoed Huis
Prijs 397.066
Bewoonbare opp. 148
Aantal slaapkamers 3