Te koop Hoogte honderd

Beschrijving van   

Vergelijk realty's

Te koop Hoogte honderd

Hoogte honderd Hoogte honderd Hoogte honderd Hoogte honderd Hoogte honderd Hoogte honderd Hoogte honderd
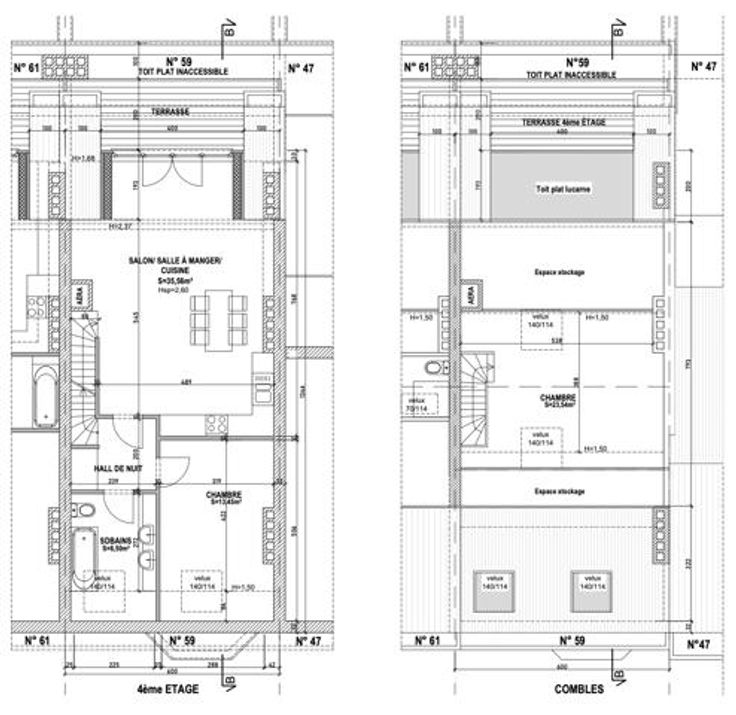
Op de 4de en 5de verdieping van een kleine mede-eigendom zonder lasten, biedt MYIMMO Etterbeek u dit prachtig nieuw duplexproject aan (renovatie van het oude dus geen BTW) van +/- 133 m² en bestaande uit op niveau 0 van het duplex (4de verdieping van het huis) een slaapkamer van +/- 13. 5 m², een aangename badkamer van +/- 6,5 m² en een grote, lichte woon-eetkamer en keuken van +/- 35,5 m² die uitgeeft op een groot terras van +/- 10 m² dat ideaal uitkijkt op het binnenland,5 m², een aangename badkamer van +/- 6,5 m² en een grote, lichte woon-eetkamer en keuken van +/- 35,5 m² die uitgeeft op een groot terras van +/- 10 m² dat ideaal uitkijkt op het binnenland van een zeer groen eiland. Op de 1e verdieping van de duplex (5e verdieping van het huis) is een 2e slaapkamer van ongeveer 23,5 m². Ideale ligging, 1e bewoning na werken, onmiddellijk bezoeken! Verkoopdossier en bezoeken op aanvraag. Meer huizen op www.myimmo.be
Type vastgoed Appartement
Prijs 495.000
Bewoonbare opp. 133
Aantal slaapkamers 2
Aantal badkamers 1