Te koop Nieuw te bouwen woning te Roeselare

Beschrijving van   

Vergelijk realty's

Te koop Nieuw te bouwen woning te Roeselare

Nieuw te bouwen woning te Roeselare Nieuw te bouwen woning te Roeselare
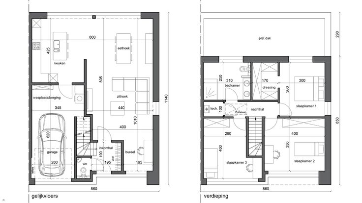
Nieuw te bouwen open bebouwing te Roeselare.  Voorbeeldwoning: indeling vrij te kiezen. Onze woningen worden afgewerkt met standaard duurzame kwalitatieve materialen waarvoor ruime budgetten worden voorzien. Als bouwheer heeft u volledige inspraak gaande van bouwstijl, materialen en afwerking.  Zo kunnen we u steeds een perfect beeld geven van de kostprijs rekening houdend met uw vooropgestelde budget Prijs grond met voorgestelde voorbeeldwoning incl. btw, registratierechten, architectenereloon, EPB, veiligheidcoördinatie, blowerdoortest, en keuring riolering. Ventilatiesysteem D met warmterecuperatie Zonnepanelen voorzien in de prijs, volgens voorstudie EPB-verslag Woning vrij te kiezen na afspraak met architect. Meer info en lastenboek zijn te verkrijgen op kantoor of bij afspraak. Aarzel niet ons te contacteren. Bouwen met meerwaarde doe je met NB-Projects Bel 053/89.35.95of e-mail naar info@nb-projects.be ------   Renovatieplicht: onbekend
Type vastgoed Huis
Prijs 549.926
Bewoonbare opp. 199
Aantal slaapkamers 3
Aantal badkamers 1