Te koop Industriële gebouwen

Beschrijving van   

Vergelijk realty's

Te koop Industriële gebouwen

Industriële gebouwen Industriële gebouwen Industriële gebouwen Industriële gebouwen Industriële gebouwen Industriële gebouwen Industriële gebouwen Industriële gebouwen Industriële gebouwen Industriële gebouwen Industriële gebouwen
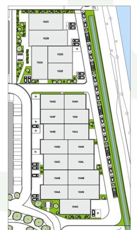
Heros Business Park te Hasselt biedt een innovatieve en duurzame werkomgeving voor kleine en middelgrote ondernemingen. Dit nieuwbouw KMO-park bestaat uit 20 flexibele units in een groen en inspirerend kader. Momenteel is er nog slechts één unit beschikbaar van 177 m². Dankzij de strategische ligging langs de Hasseltse grote ring en de nabijheid van de E313 is Heros Business Park uitstekend bereikbaar. Een nieuwe verbindingsweg verbindt de Herkenrodesingel met de Oude Spoorbaan, waardoor werknemers en klanten gemakkelijk toegang hebben tot de site. Met voldoende parkeergelegenheid voor de deur, een bushalte aan de ingang en een fietsostrade die langs het park loopt, biedt Heros Business Park optimale mobiliteit voor alle bezoekers. De KMO-units zijn ontworpen met oog voor kwaliteit en duurzaamheid. Ze voldoen aan de strengste EPB- en brandveiligheidsnormen en zijn gebouwd met onderhoudsvriendelijke materialen die zorgen voor een lange levensduur. Bovendien laten de units veel natuurlijk daglicht binnen, wat bijdraagt aan een aangename en productieve werkomgeving. Het parkmanagement ontzorgt de ondernemers door in te staan voor het tuinonderhoud, controles en verzekering. Daarnaast is Heros Business Park volledig uitgerust met moderne infrastructuur. De gemeenschappelijke faciliteiten omvatten onder andere een tellerlokaal met een 25D60 kastenbatterij per unit, nutsvoorzieningen zoals EXVB-bekabeling, coax- en fiberkabels, en een brandcentrale. Elke unit
Type vastgoed Commercieel
Prijs 262.100
Bewoonbare opp. 177