Te koop Nieuw te bouwen halfopen woning (water- en...

Beschrijving van   

Vergelijk realty's

Te koop Nieuw te bouwen halfopen woning (water- en winddicht) met vr

Nieuw te bouwen halfopen woning (water- en winddicht) met vr Nieuw te bouwen halfopen woning (water- en winddicht) met vr Nieuw te bouwen halfopen woning (water- en winddicht) met vr
Wist je dat onze voorbeeldwoningen slechts het startpunt zijn, en dat je alles nog kunt aanpassen naar jouw stijl en wensen? Wij bouwen de woning water- en winddicht en geven je de vrijheid om de verdere afwerking te personaliseren. Bij Your Home krijg je naast esthetische en architecturale begeleiding ook advies over hedendaags wooncomfort. Want samen bouwen, dat is ons motto. Wil je alles graag persoonlijk overlopen? Neem gerust contact met ons op. Wij helpen je graag verder. Mail naar aanvraag@yourhome.be of bel 056 755 788. Tip: Bezoek onze Kijkwoning na afspraak (zie www.yourhome.be/kijkwoning).
Type vastgoed Huis
Prijs 285.595
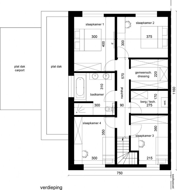
Bewoonbare opp. 192
Aantal slaapkamers 4