Te koop Nieuw te bouwen alleenstaande woning (wate...

Beschrijving van   

Vergelijk realty's

Te koop Nieuw te bouwen alleenstaande woning (water- en winddicht) m

Nieuw te bouwen alleenstaande woning (water- en winddicht) m Nieuw te bouwen alleenstaande woning (water- en winddicht) m Nieuw te bouwen alleenstaande woning (water- en winddicht) m
Een bouwcoördinator die je bouwgrond voorstelt én je begeleidt bij het kiezen van een voorbeeldwoning? Welkom bij Your Home. Wij bouwen jouw woning water- en winddicht, met volledige flexibiliteit om de afwerking naar jouw wensen en budget in te richten. Ook bij de keuze van zonnepanelen, ventilatiesystemen en duurzame materialen staan wij je met raad en daad bij. Zo bouwen we samen aan jouw thuis. Meer informatie over de voorgestelde bouwgronden en onze woningen? Neem vrijblijvend contact met ons op. Wij helpen je graag verder. Mail naar aanvraag@yourhome.be of bel 056 755 788. Tip: Bezoek onze Kijkwoning na afspraak (zie www.yourhome.be/kijkwoning).
Type vastgoed Huis
Prijs 361.408
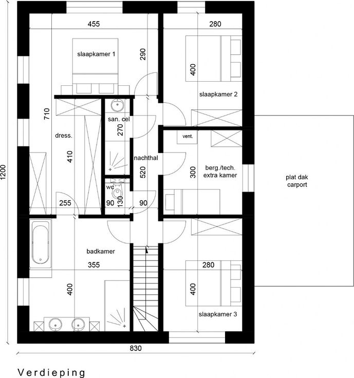
Bewoonbare opp. 199
Aantal slaapkamers 3