Te koop Huis

Beschrijving van   

Vergelijk realty's

Te koop Huis

Huis Huis Huis Huis Huis Huis Huis Huis Huis Huis Huis Huis Huis Huis Huis Huis Huis Huis Huis Huis
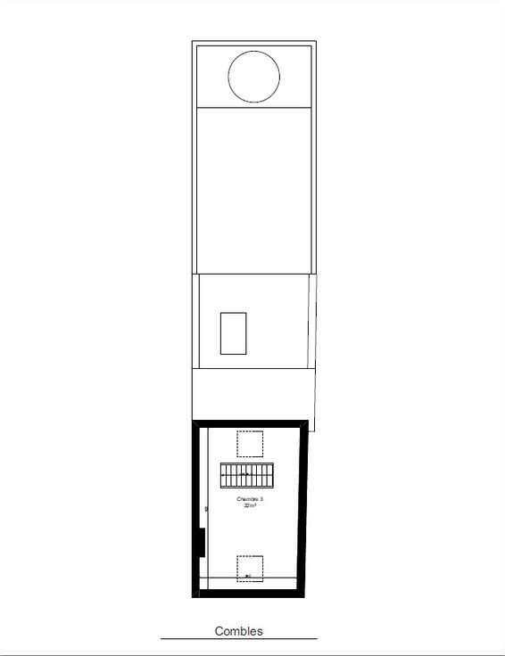
🏡 Maison Rénovée et Prête à Vivre 🏡 Prix faire offre à partir de 170.000 ✨ Vous cherchez un nouveau nid douillet ? Cette maison entièrement rénovée n'attend que vous ! Posez vos valises, elle est habitable immédiatement. Dès l'entrée, nous pénétrons dans un salon de 15 m², parfait pour des moments de détente. Celui-ci nous mène à une cuisine spacieuse de 18 m², idéale pour les repas en famille ou entre amis. 🚿 Salle de bain pratique de 5 m², située au rez-de-chaussée. Au 1er étage, vous découvrirez deux chambres : 🛏️ Une première chambre de 13 m². 🛏️ Une seconde chambre plus grande de 15 m². Dans le grenier aménagé, une chambre avec dressing de 20 m² vous attend, offrant un espace intime et confortable. Enfin, vous bénéficierez d'une cave généreuse de 30 m², parfaite pour le rangement ou d'autres projets. Caractéristiques : 🛏️ 3 chambres spacieuses pour accueillir toute la famille. 🌟 Grande baie vitrée et coupole vitrée apportant une luminosité incroyable. 🌞 Belle terrasse avec un jacuzzi pour des moments de détente uniques. 🍽️ Cuisine neuve et full équipée avec un îlot central, parfaite pour les amateurs de cuisine 🔥 Chaudière au gaz pour un confort thermique optimal. 🌡️ Thermostat intelligent pour optimiser votre consommation énergétique. 🗄️ Cave idéale pour le rangement ou vos réserves. C.df immobillier nous achetons nous vendons nous estimons en 48h sans engagement +32494269100 Cheung wei +32496063188 Carl Delfabbro
Type vastgoed Huis
Prijs 170.000
Bewoonbare opp. 150
Aantal slaapkamers 3
Gemeubileerd YES