Te koop Twee ondergrondse autostaanplaatsen

Beschrijving van   

Vergelijk realty's

Te koop Twee ondergrondse autostaanplaatsen

Twee ondergrondse autostaanplaatsen Twee ondergrondse autostaanplaatsen Twee ondergrondse autostaanplaatsen Twee ondergrondse autostaanplaatsen Twee ondergrondse autostaanplaatsen Twee ondergrondse autostaanplaatsen Twee ondergrondse autostaanplaatsen
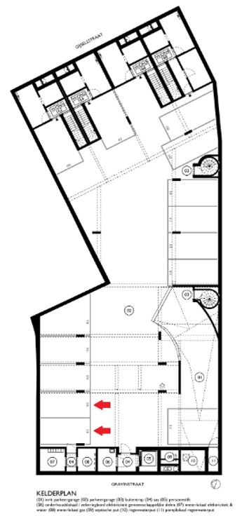
We verkopen twee autostaanplaatsen in de ondergrondse verdieping van het nieuwbouwproject Tirantas aan de Gravinstraat 35 in Borgerhout. De vrije doorrijhoogte naar de ondergrondse ruimte bedraagt 1,90 m. De plaatsen hebben een breedte van 2,50 m en een lengte van 4,70 m. Dit telkens gemeten vanaf de binnenkant van de lijnen. Er is geen voorziening om oplaadpunten te plaatsen voor elektrische voertuigen. De autostaanplaatsen worden apart verkocht via biedingen onder gesloten omslag. De biedingen lopen af op 30 september om 10.30 en om 11 uur. Contact: 03 432 82 77 - bjorn.raekelboom@antwerpen.be - www.agvespa.be Renovatieplicht: onbekend
Type vastgoed Garage
Prijs 21.900