Te koop Bouwgrond te koop - Gijzegem, Lange Haagst...

Beschrijving van   

Vergelijk realty's

Te koop Bouwgrond te koop - Gijzegem, Lange Haagstraat 22

Bouwgrond te koop - Gijzegem, Lange Haagstraat 22
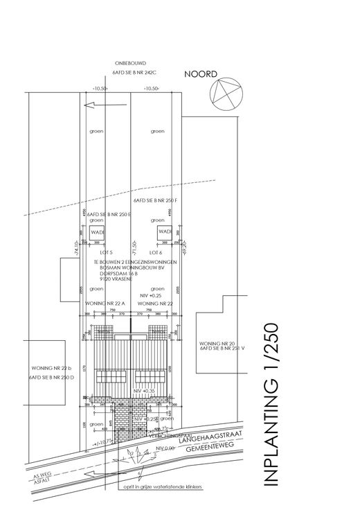
Bouwgrond te Koop – Lange Haagstraat 22, Gijzegem Ontdek jouw ideale bouwgrond in de sfeervolle Lange Haagstraat, Gijzegem. Met een oppervlakte van 740,00 m² biedt deze locatie de perfecte setting voor jouw droomwoning. De levendige buurt maakt het ideaal voor gezinsleven. Creëer jouw eigen thuis in deze charmante omgeving. Indien interesse om de woning ruwbouw-winddicht of woning volledig afgewerkt door ons te laten bouwen op de bouwgrond, aarzel niet om ons te contacteren. ! Geen bouwverplichting van toepassing.
Type vastgoed Grond
Prijs 200.000