Te koop Huis

Beschrijving van   

Vergelijk realty's

Te koop Huis

Huis Huis Huis Huis Huis Huis
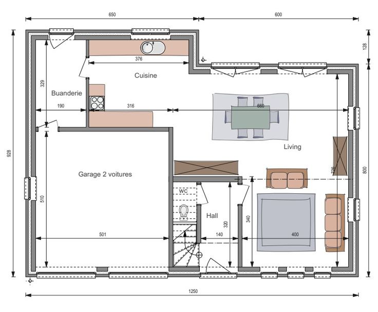
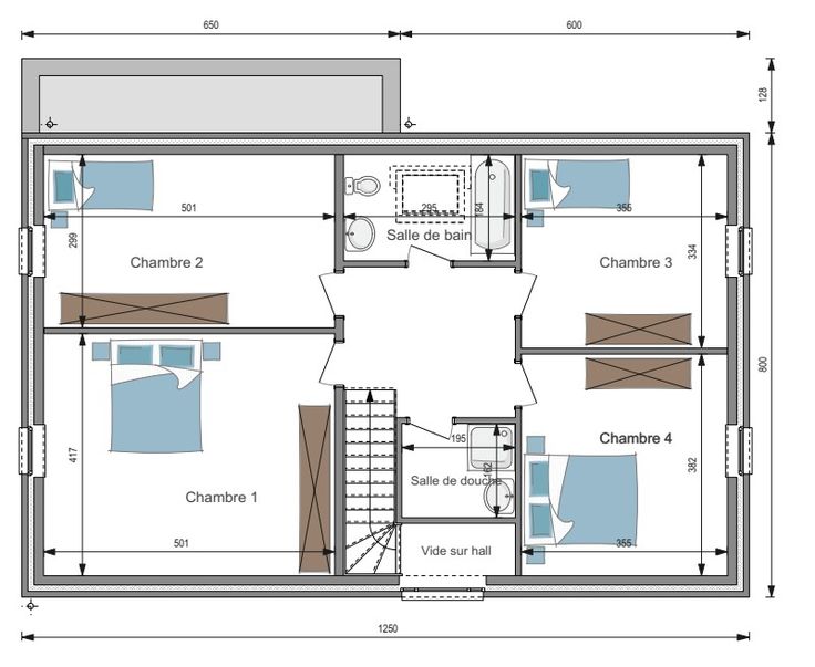
C'est à Lobbes que la société Maisons Compère vous invite à envisager la construction de votre foyer en vous présentant ce magnifique terrain d'une superficie de 2.112m², bénéficiant d'une superbe orientation OUEST. Ce bien se situe au sein d'une rue à faible circulation, propice à la quiétude et à la sérénité, enveloppé dans un environnement verdoyant. Sa localisation saura vous satisfaire vos attentes, étant donné qu'il se trouve à seulement 3 km du cœur de Thuin et de son emblématique beffroi, tandis que l'accès à la Route 3 en direction de Charleroi est à moins de 8 km. Permettez nous de vous présenter cette splendide construction 4 façades, d'une superficie dépassant les 150 m², organisée comme suit : Au rez-de-chaussée, vous accéderez à un hall d'entrée généreusement éclairé, un WC, une salle à manger, un espace salon élégant, une cuisine, une buanderie ainsi qu'un double garage. Le hall de nuit, se trouvant à l'étage supérieur vous amènera à 4 chambres spacieuses, à une sale de bain équipée d'une baignoire ainsi qu'une salle de douche. Nous vous invitons à découvrir ce projet, incluant le terrain, pour la somme de 380.983,00 € HTVA, hors frais d'architecte et frais de notaire. Ce projet est entièrement personnalisable selon vos préférences et vos souhaits. Le prix est indicatif et pourra être sujet à modification en fonction de la personnalisation. Pour de plus amples informations, Mr Mariani se tient à votre disposition au 0475/23.62.76
Type vastgoed Huis
Prijs 380.893
Bewoonbare opp. 150
Aantal slaapkamers 4
Aantal badkamers 1