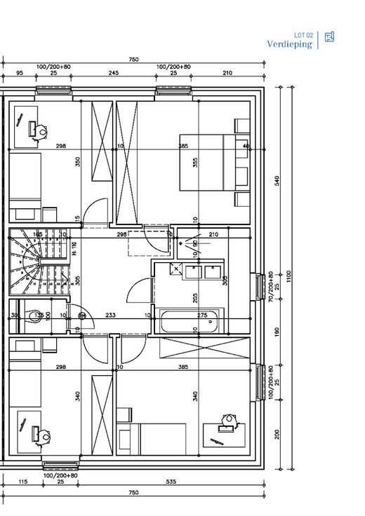
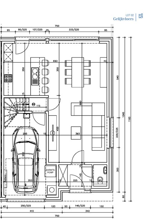
Halfopen energiezuinige nieuwbouwwoning op een perceel van 312m2 - een interieurafwerking 100% op maat - ruime afwerkingsbudgetten - energiezuinige technieken zoals warmtepomp - vloerverwarming op beide verdiepingen,... . Tijdens het keuze- en bouwproces kunt u rekenen op de begeleiding én expertise van onze interieurvormgevers en projectleiders. De woning beschikt op het gelijkvloers over een inpandige garage met was/bergplaats, een inkom met gastentoilet en een open leefruimte. Op de eerste verdieping bevinden zich 4 slaapkamers, een apart toilet en een badkamer met bad+douche. De praktische zolder is toegankelijk met een uitschuifbare zoldertrap. Zie jij jezelf hier wonen? Bel Ewout op
0497 588 888 of mail naar contact@huysmanbouw.be voor meer informatie. Meer info over het project op huysmanbouw.be
Renovatieplicht: onbekend