Te koop Te koop - Woning - Kumtich

Beschrijving van   

Vergelijk realty's

Te koop Te koop - Woning - Kumtich

Te koop - Woning - Kumtich Te koop - Woning - Kumtich Te koop - Woning - Kumtich Te koop - Woning - Kumtich Te koop - Woning - Kumtich
Type vastgoed Varia
Prijs 210.000
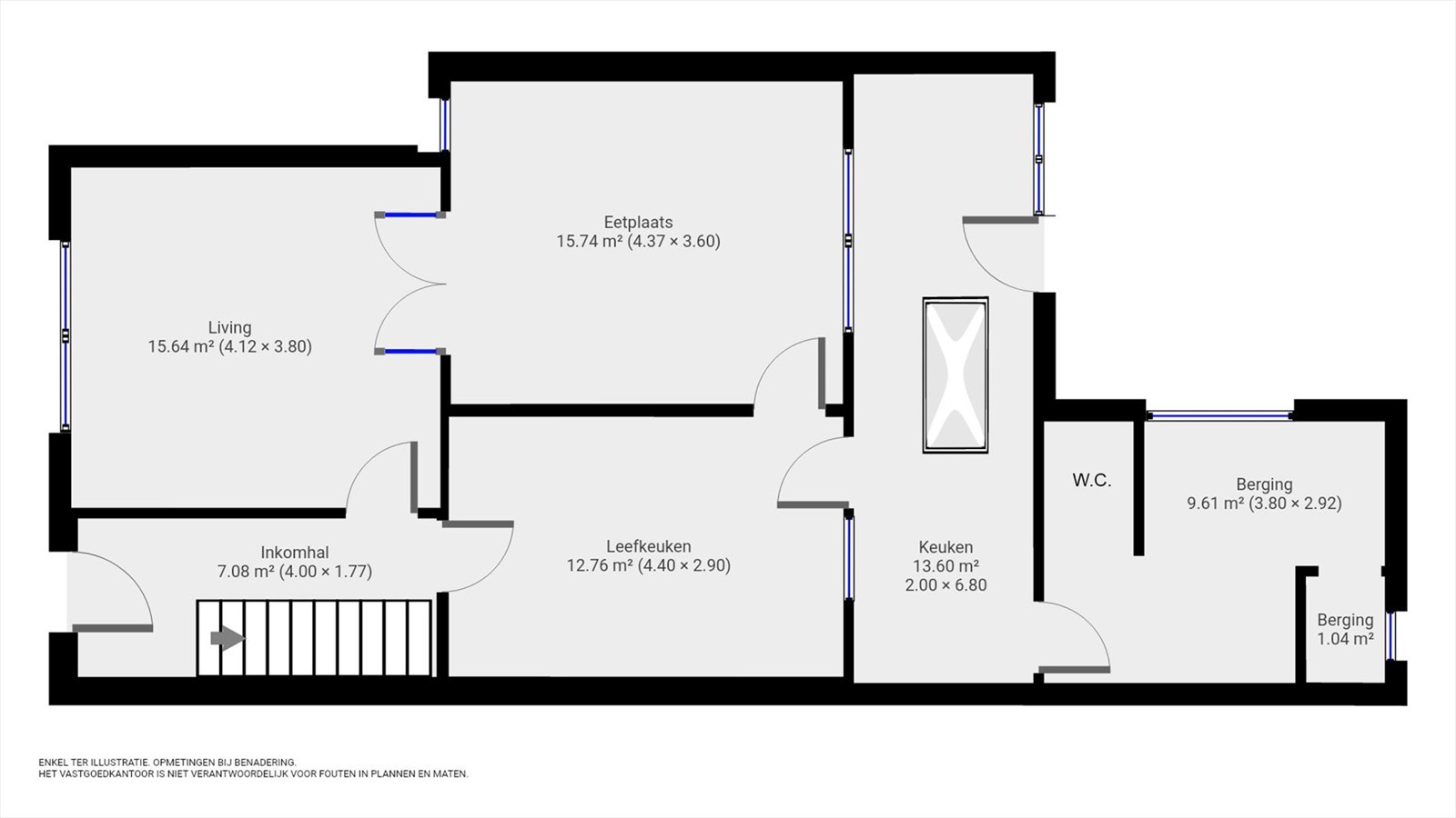
Opp. van het terrein 457
Bewoonbare opp. 123
Aantal slaapkamers 3
Aantal badkamers 1