Te koop Te koop - Woning - Tienen

Beschrijving van   

Vergelijk realty's

Te koop Te koop - Woning - Tienen

Te koop - Woning - Tienen Te koop - Woning - Tienen Te koop - Woning - Tienen Te koop - Woning - Tienen Te koop - Woning - Tienen Te koop - Woning - Tienen Te koop - Woning - Tienen Te koop - Woning - Tienen
Type vastgoed Varia
Prijs 299.000
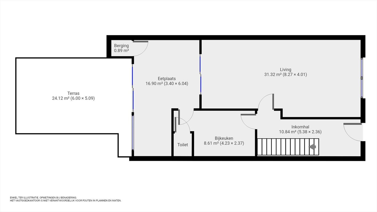
Opp. van het terrein 265
Bewoonbare opp. 117
Aantal slaapkamers 3
Aantal badkamers 1