Te huur Verhuurd - Appartement - Tienen

Beschrijving van   

Vergelijk realty's

Te huur Verhuurd - Appartement - Tienen

Verhuurd - Appartement - Tienen Verhuurd - Appartement - Tienen Verhuurd - Appartement - Tienen Verhuurd - Appartement - Tienen Verhuurd - Appartement - Tienen
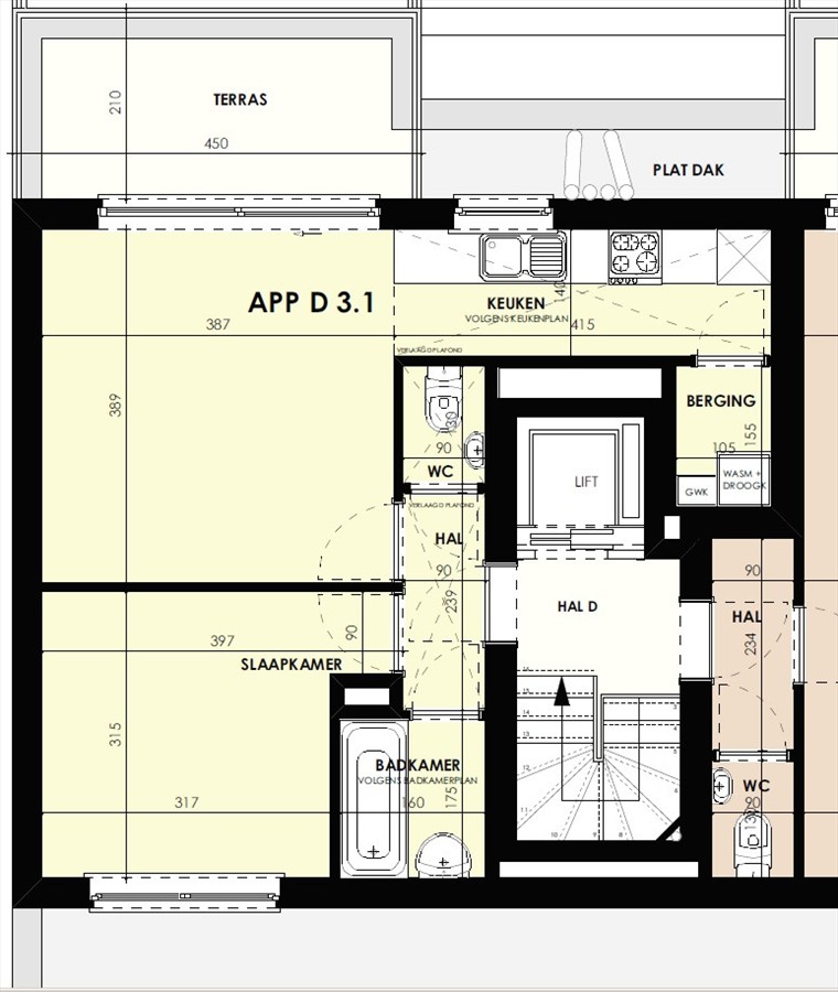
Knus instapklaar appartement, gelegen op de 3de verdieping nabij het centrum. Dit gezellig appartement is bereikbaar met lift en omvat: inkom, toilet, badkamer, slaapkamer, leefruimte, terras, ingerichte keuken en berging. In de huurprijs is een ondergrondse staanplaats inbegrepen. Overal zijn er PVC-ramen met dubbele beglazing en centrale verwarming op aardgas. Alle nutsvoorzieningen zijn individueel. Algemene kosten provisie € 40,00/maand. Geen huisdieren toegelaten.
Type vastgoed Appartement
Prijs Op aanvraag
Aantal slaapkamers 1