Prijs: 2.300 €
Type vastgoed: Huis
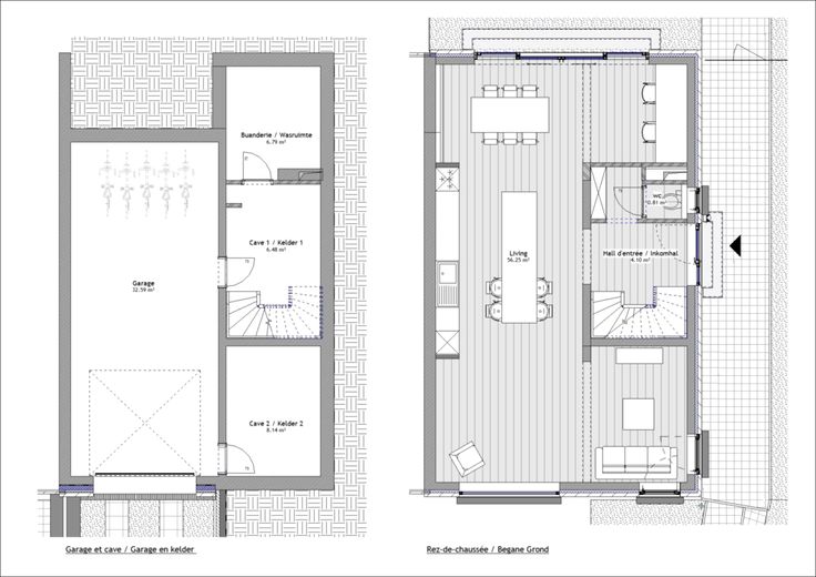
Bewoonbare opp.: 210 m²
Aantal slaapkamers: 4
Aantal badkamers: 1

1 jaar geleden